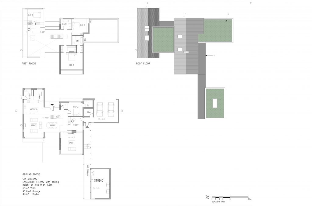
581_P3_05 Plans